掲載物件
69件

ラチャダーピセーク通り沿いに2026年竣工したAIA Connect Ratchadaは、MRTタイ文化センター駅に直結する34階建てのプレミアムグレードAオフィスビルです。 風水の原則を取り入れた曲線フォルムが象徴的なグレードAクラスの本ビルは、小区画ユニットから、最大2,010㎡のワンフロア貸しまで、企業規模を問わず対応できる柔軟な区画構成も魅力。2027年末開通予定のMRTオレンジラインとの乗換駅となることから、長期的な利便性向上も期待できます。

風水設計×グレードAオフィスが融合した、ラチャダーエリアの注目ビルです。LEED GOLD・WELL GOLD・WiredScore Platinumの3冠認証取得を目指す、環境・健康・通信品質すべてにこだわったプレミアムオフィスビルです。MRTタイ文化センター駅に直結し、2027年末開通予定のオレンジラインとの乗換拠点にもなる、将来性の高いロケーションです。

本ビルの設計には専属の風水師が起用されており、建物のコンセプト段階から風水の原則が徹底的に取り入れられています。従来の直線的なオフィスビルとは一線を画す独特の曲線フォルムは、気の流れを最適化し、富と繁栄を引き寄せるための風水的配慮から生まれたデザインです。吉方位への向き、エネルギーの循環、空間の調和——これらすべてが風水師の監修のもと緻密に計算されており、入居企業のビジネスの成長と長期的な成功を後押しする環境づくりが徹底されています。

ラチャダーピセーク通り沿いに位置し、エスプラネード、セントラルラマ9、ビッグCエクストラといった大型商業施設が徒歩圏内に揃う、利便性の高いビジネスエリアです。ビル内に飲食店やカフェも豊富な商業ゾーン(G〜5階)を抱えており、ランチや商談後の一杯にも困りません。


MRTタイ文化センター駅2番出口に直結(2026年6月正式開通予定)。MRTブルーラインで市内各所へダイレクトにアクセス可能なほか、2027年末開通予定のMRTオレンジラインとの乗換駅にもなる予定で、さらなる交通利便性の向上が見込まれます。

吹き抜け構造を採用した開放感あふれるロビーは、高層階まで続く曲線的なスロープとエスカレーターが視線を上へと誘う、ダイナミックな空間構成が印象的です。壁に設置されたサイネージが存在感を放ち、訪れる人に上質なビジネス環境であることを印象づけます。風水設計の思想を体現するかのような流れるような曲線が随所に取り入れられており、グレードAにふさわしい格調と躍動感を兼ね備えたエントランスです。

自動改札ゲート(ターンスタイル)完備:不正入館を防ぐ物理的なアクセスコントロールを実装。
来客管理体制:すべての来訪者はロビーでの入館登録が必須。キオスクによるセルフ登録にも対応しており、受付業務の効率化と安全性を両立しています。
24時間CCTVおよび警備員常駐:ビル全体を24時間体制で監視・巡回しており、テナントが安心して業務に集中できる環境を提供しています。

ローゾーン(8〜23階)には10基、ハイゾーン(25〜34階)には8基のエレベーターを配置。24階がゾーン間の乗換フロアとなっています。ラッシュ時でも待ち時間を最小限に抑える十分な基数を確保しており、大規模テナントの入居にも対応できる輸送力を備えています。
AIA Connect Ratchadaのオフィスフロアは、企業規模や用途に応じて3つの区画タイプから選択できます。

10分割フロア(9〜26階の一部):140〜290㎡の小区画ユニットを10室に分割。小〜中規模企業やスタートアップに最適です。

4分割フロア(17〜20階):390〜570㎡の中〜大規模ユニット。部門ごとのフロア確保や、ゆとりある執務空間を求める企業に適しています。

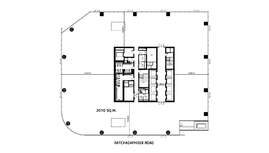
ワンフロア貸し(27〜34階):1フロアあたり最大2,010㎡。フロア一括での使用を希望する大企業や、眺望・プレステージを重視するテナントに最適なハイゾーンです。
※面積はすべて概算値です。希望フロア・ユニットの空き状況は要問い合わせ。

天井高:3m。圧迫感のない開放的な執務空間を実現しています。
空調システム:セントラル冷水方式(VAV)。通常営業時間(月〜金 8:00〜18:00)の冷水費用は賃料に含まれます。時間外・休日の利用は別途料金が発生します。
照明:LED照明を全フロアに採用。
フロア形状:柱のないコラムフリー設計により、自由度の高いオフィスレイアウトが可能。バルコニー付きユニットへの変更も別途相談可能です。
引き渡し条件:アコースティックTバー天井・LED照明・空調・セメントスクリード床の状態での引き渡しとなります。

廊下は広々としており、2人以上が並んで歩いても十分に余裕があります。什器の搬入や大きな荷物の移動もスムーズに行える設計で、日常の動線確保だけでなくレイアウト変更時にも高い利便性を発揮します。


トイレは非常に清潔感があります。多目的トイレにはシャワーやおむつ交換台も完備されており、多様なニーズに対応した仕様は、最新オフィスならではの細やかな配慮を感じさせます。

パントリーはコンパクトながら必要十分な設備が整っています。シンクには飲料水専用の蛇口も備わっており、実用的な仕様です。
商業施設(G〜5階):レストラン・カフェ・コンビニ(セブンイレブン)が入居する5フロア構成の商業ゾーン。日常の食事や買い物をビル内で完結できます。

アウトドアエリア:屋外シーティングエリア、ウォーキングトラック、ピックルボールコート、都市型屋上農園を完備。仕事の合間のリフレッシュや健康管理に役立つ環境が整っています。
フィットネスセンター:4階に設置。業務前後のトレーニングや、WELL認証に基づく健康促進プログラムにも対応した設備です。

収容台数:約787台分を確保。
無料枠:賃借面積100㎡につき1台分が無料で付帯します。
追加駐車:1台につき月額2,500バーツ(空き状況による)。